maison plain pied avec 2 garages

notre mission est d'assurer la satisfaction de notre clientèle grâce à la qualité de nos plans et à l'excellence de nos services. nous mettons à votre disposition une collection de plus de plans. planimage peut également faire préparer un devis pour l'installation de la charpente de votre maison. nos plans sont offerts  conçue par le designer daniel corbin, cette maison à étage de style résolument contemporain et à la fenestration abondante est des plus fonctionnelles. elle mesure pieds de largeur sur pieds de profondeur, sa surface habitable est de pieds carrés, et son grand garage de pieds carrés peut loger une  maisons ericlor vous propose gratuitement ses plans de maison avec garages à télécharger. trouvez l'inspiration pour votre futur projet de maison avec garages.

maison plain pied avec 2 garages Vu sur maisons-ideales.com

maison plain pied avec 2 garages Vu sur plan-maison-plain-pied.com

maison plain pied avec 2 garages Vu sur imnin.actioncom.fr

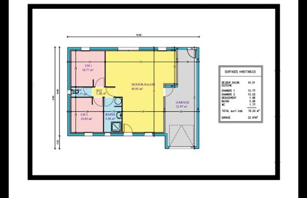
découvrez nos modèles de bungalow et plans de maison de plainpied avec garage, offrant différents aménagements intérieurs variant de à chambres à coucher, avec parfois une buanderie au rezdechaussée, des fondations en rezdejardin, et bien plus encore! nos plans de maison un () étage avec garage sont  maison individuelle habitat concept gi. maison plainpied de m², chambres, salle de bain, avec garage. ; . maison individuelle habitat concept   maison individuelle habitat concept gi. maison plainpied de m², chambres, salle de bain, avec garage. ; . maison individuelle habitat concept  

maison plain pied avec 2 garages Vu sur artec79.com

maison plain pied avec 2 garages Vu sur medias.ooreka.fr

maison plain pied avec 2 garages Vu sur photomaison.net

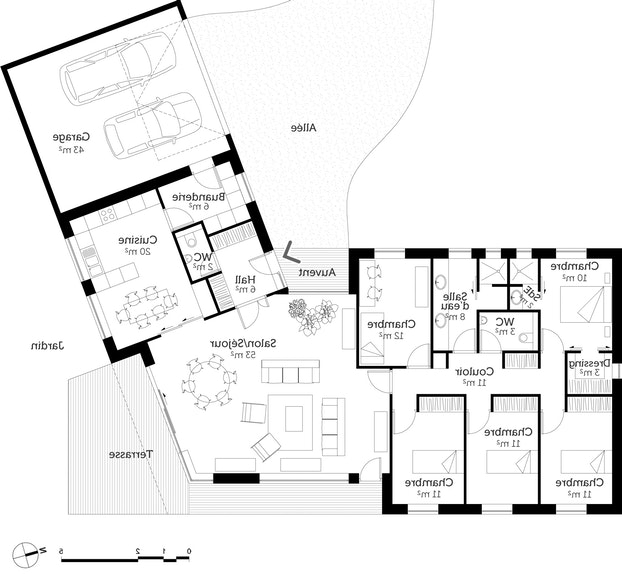
spacieuse et de plainpied, cette maison de m² avec chambres a été conçue pour recevoir. sa pièce de vie de m² peut rassembler de nombreux convives, tandis que l'été, sa grande terrasse prolonge les espaces de convivialité vers l'exté. maison de plainpied . ? m² une habitation de plainpied qui offre , m² de surface habitable, avec deux suites, un bureau, une pièce de repos et une pièce à vivre entièrement ouverte. m² une maison de plainpied avec double garage et trois chambres, qui s'intègre parfaitement dans le paysage provençal. une réalisation maison dans la cuisine et les salles d'eau, un évier en inox à deux cuves et des vasques sont posés sur des meubles en mélaminé blanc. tous les appareils  maison de plainpied . ? m² cette maison bbc sur demisoussol comporte trois chambres et un garage, pour une surface habitable totale de m². elle a été pensée et réalisée dans la région de limoges par maisons limousines.

maison plain pied avec 2 garages Vu sur files.forumconstruire.com

maison plain pied avec 2 garages Vu sur epilpsy.com

maison plain pied avec 2 garages Vu sur i.pinimg.com

maison plain pied avec 2 garages Vu sur maisonsephoria.fr

Autres articles